585 Tea Olive Blvd, O’Fallon IL 62269
(UNDER CONSTRUCTION)

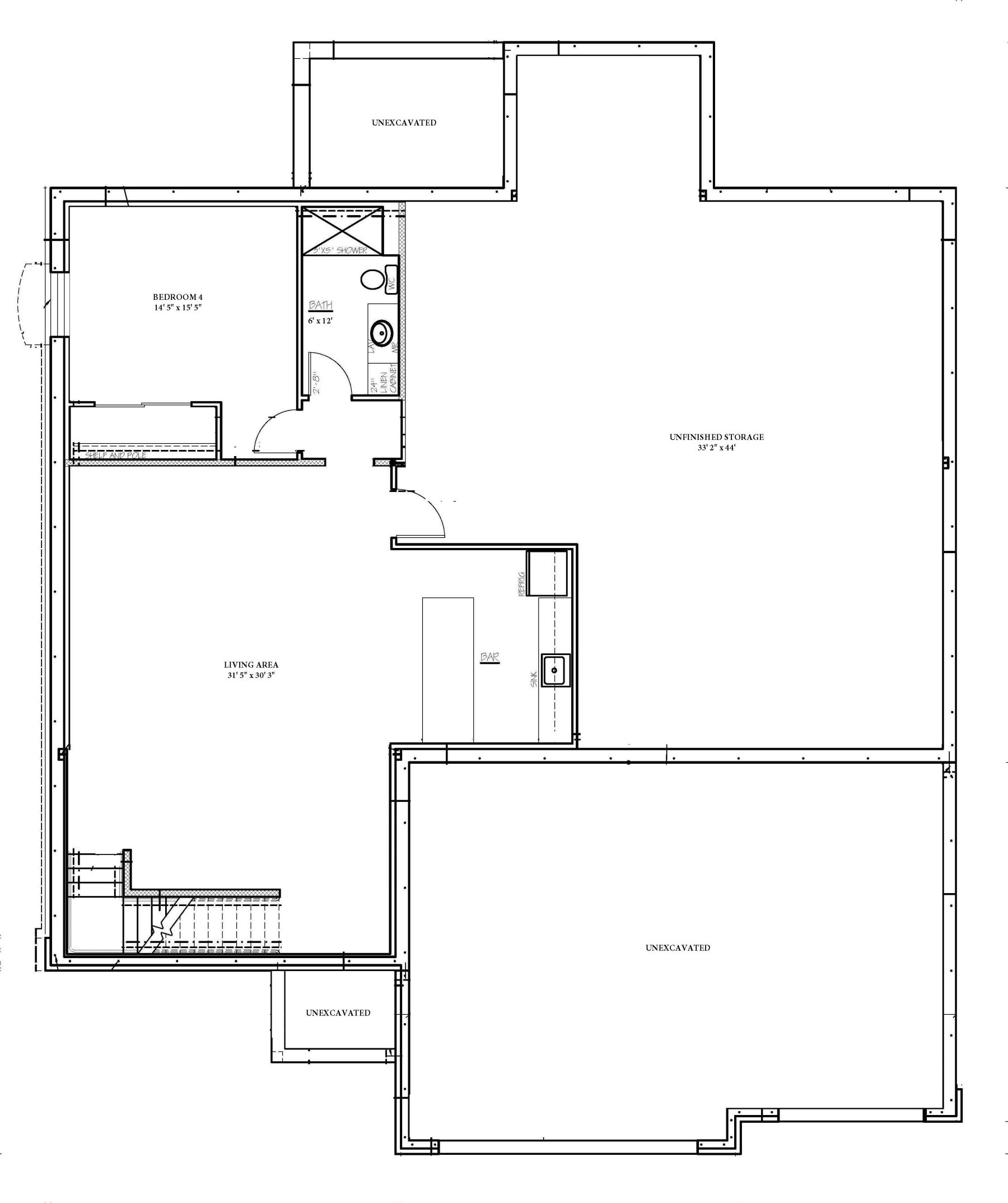
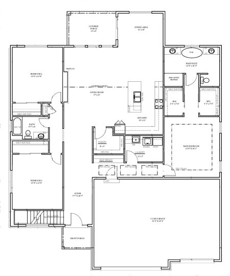
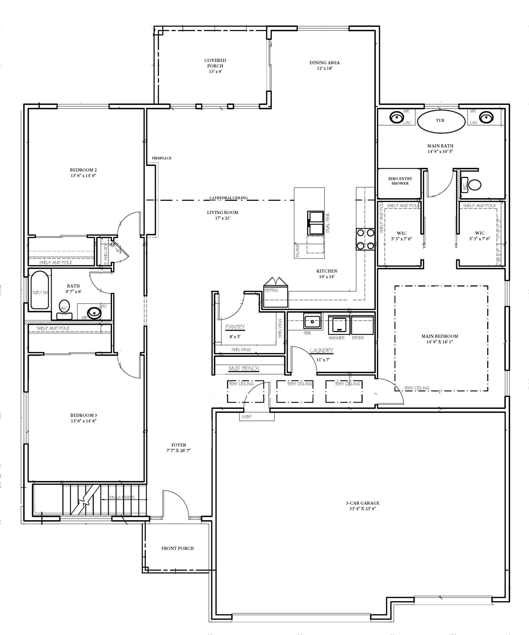
- House Plan: The Fir
- School District: O’Fallon, IL District #90 & #230
- Layout: 5 Bedrooms, 4 Bathrooms, 3-Car Garage
- Square Footage: 3,656 Finished SF + 1,134 SF Storage
The Fir plan features:
- 3-Car Garage
- 10′ Ceilings, 6′ Windows, 8′ Interior Doors
- Jetted Tub
- Zero Entry Tile Shower and Bathroom
- Cathedral & Tray Ceilings
- Isolated Master Suite – dual closets
- Floor-to-ceiling fireplace and mantel
- Covered back patio
